
| 品牌 | 其他品牌 | 供货周期 | 一周 |
|---|---|---|---|
| 应用领域 | 环保,化工,电子/电池,电气 |
AJ65SBTB1-16D1三菱CC-LINK模块是三菱CC-LINK端子排型输入模块,
AJ65SBTB1-16D1型DC 24V输入模块,端子排型输入模块(正公共端(漏型)、负公共端(源型)共用型)
AJ65SBTB1-16D1三菱CC-LINK模块产品详细介绍:
【输入类型】DC 24V输入
【输入形式】正、负公共端共用型(漏型、源型共用型)
【输入点数】16点
【绝缘方式】光耦合器绝缘
【额定输入电压】DC24V
【额定输入电流】约7mA
【使用电压范围】DC19.2~26.4V(波动率5%以内))
【最大同时输入点数】100%
【ON电压/ON电流】15V以上/3.5nA以上
【OFF电压/OFF电流】3V以下/1.7mA以下
【输入电阻】约4.7kΩ
【响应时间】OFF->ON / ON->OFF 都为0.2ms以下(DC24V时)
【公共端方式】16点1公共端(2点)(端子排型1线式)
【占用站数】1站 分配32点(使用8点)
【I/O模块电源】
◆ 电压:DC20.4~26.4V(波动率5%以内)
◆ 电流:40mA以下((DC24V,全部点ON时)
【噪声强度】由模拟噪声1500VP-P、噪声宽度1μs、噪声频率25~60Hz的噪声模拟器所产生的声
【耐电压】DC外部端子汇总-接地间AC500V 1分钟期间
【绝缘电阻】DC外部端子汇总-接地间 DC500V 绝缘电阻计测量10MΩ以上
【保护等级】IP2X
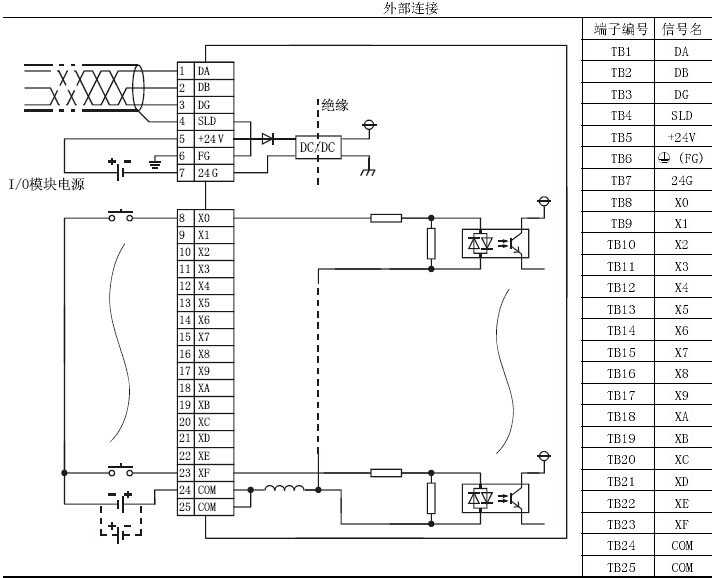
【外部连接方式】
◆ 通信部分、I/O模块电源部分:
7点2段端子排[传送回路、I/O模块电源、FG]
M3*5.2扭紧力矩59~88N·cm适用压装端子的插入个数为2个以内
◆ 输入输出电源部、输入输出部分:
18点直接安装端子排[输入输出电源、I/O信号]
M3*5.2扭紧力矩59~88N·cm适用压装端子的插入个数为2个以内
【模块安装螺栓】
◆ 带平垫圈磨圆M4螺栓(扭紧力矩范围79~108N·cm)
◆ 可以通过DIN轨安装,可以6方向安装
【适用DIN轨】TH35-7.5Fe、TH35-7.5A1(基于JIS C 2812标准)
【适用压装端子】
◆ RAV1.25-3(基于JIS C 2805标准)[适用电线尺寸:0.3~1.25mm2]
◆ V2-MS3(日本压装端子制造(株))、RAP2-3SL(日本端子(株))、TGV2-3N((株)Nichifu) [适用电线尺寸:1. 25~2.0mm2]
【重量】0. 18kg
AJ65SBTB1-16D1外部连接图

邮箱:https://www.23anji.com
地址:上海市黄浦区黄河路21号鸿祥大厦11层(williamhill英国官网)

williamhill英国官网-三菱电机

JOMO株式会社