
| 品牌 | 其他品牌 | 供货周期 | 一周 |
|---|---|---|---|
| 应用领域 | 环保,化工,电子/电池,电气 |
AJ65SBTCF1-32D属于FCN连接器型三菱cc-link输入模块。AJ65SBTCF1-32D价格、AJ65SBTCF1-32D供应商。AJ65SBTCF132D
三菱cc-link模块AJ65SBTCF1-32D参数说明:DC输入32点 DC24V 5mA、响应时间1.5ms 32点1公共端、漏型/源型共用、1线式、FCN连接器型输入(40针连接器)
三菱cc-link模块AJ65SBTCF1-32D产品规格说明:
输入类型:DC 24V输入
输入点数:32点
绝缘方式:光耦合器绝缘
额定输入电压:DC24V
额定输入电流:约5mA
使用电压范围:DC19.2~26.4V(波动率5%以内))
最大同时输入点数:100%
ON电压/ON电流:14V以上/3.5mA以上
OFF电压/OFF电流:6V以下/1.7mA以下
输入电阻:约4.7kΩ
响应时间:OFF->ON / ON->OFF 都为1.5ms以下(DC24V时)
公共端方式:32点1公共端(FCN连接器 1线式)
输入形式:正、负公共端共用型(漏型、源型共用型)
占用站数:1站分配32点(使用32点)
I/O模块电源:
电压:DC20.4~26.4V(波动率5%以内)
电流:45mA以下((DC24V,全部点ON时)
噪声强度:通过DC型的噪声电压 500VP-P、噪声宽度1μs、噪声频率25~60Hz的噪声模拟器所产生的噪声
耐电压:DC外部端子汇总-接地间AC500V 1分钟期间
绝缘电阻: DC外部端子汇总-接地间 DC500V 绝缘电阻计测量10MΩ以上
模块安装螺栓:带平垫圈磨圆M4(扭紧力矩范围79~108N·cm);可以通讨DIN轨安装,可以6方向安装
保护等级:IP2X
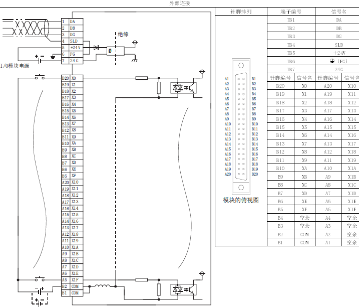
外部连接方式:
1 通信部分、I/O模块电源部分:
7点2段端子排[传送回路、I/O模块电源、FG];M3*5.2 扭紧力矩59~88N·cm;适用压装端子的插入个数为2个以内
2 输入输出电源部分、输入输出部分:
40针连接器[输入输出部分外部供给电源,I/O信号](A6CON1,A6CON2,A6CON3,A6CON4)
模块安装螺栓:带平垫圈磨圆M4(扭紧力矩范围79~108N·cm);可以通讨DIN轨安装,可以6方向安装
适用DIN轨:TH35-7.5Fe、TH35-7.5A1(基于JIS C 2812标准)
适用电线尺寸:
通信部分、I/O模块电源部分、输入输出电源部分:适用压装端子
·RAV1.25-3(基于JIS C 2805标谁)[适用电线尺寸:0.3~1.25mm2]
·V2-MS3(日本压装端子制造(株))、RAP2-3SL(日本端子(株)),TGV2-3N((株)Nichifu)[适用电线尺寸:1.25^2.0mm2]
输入输出部分:
0.3mm2(AWG#22)以下(A6CON1,A6CON4的场合)
0.2~0.8mm2(AWG#24~28)(A6CON2的场合)
0.08mm2(AWG#28)连接线,Ф0.25mm(AWG#30),单线(A6CON3的场合)
适用连接器/端子排变换模块:A6TBXY36、A6TBXY54、A6TBX70
AJ65SBTCF1-32D相关资料:
1、重量:0.15KG
2、AJ65SBTCF1-32D价格(面价):3030
3、图片:
4、AJ65SBTCF1-32D外形尺寸[mm]:50(H)*118(W)*40(D)
5、AJ65SBTCF1-32D外部连接图:

邮箱:https://www.23anji.com
地址:上海市黄浦区黄河路21号鸿祥大厦11层(williamhill英国官网)

williamhill英国官网-三菱电机

JOMO株式会社